Отделочные работы в Минске

Дизайн-проект кафе «РАНIЦА»

Общая концепция

Дизайн-проект кафе «РАНIЦА» разработан с учетом принципов минимализма, эргономики и визуальной идентичности бренда. Пространство сочетает в себе уют, функциональность и современную эстетику, создавая комфортную атмосферу для гостей и эффективную рабочую среду для персонала.

Dizajn Proekt Kafe 01
Dizajn Proekt Kafe 02

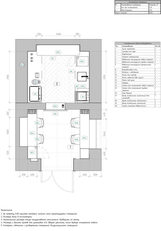
Планировочные решения

  • Формат: кафе-кофейня с зоной быстрого обслуживания и посадочными местами для кратковременного пребывания.
  • Зонирование: выделены три ключевые зоны — барная стойка, зона ожидания/посадки, техническая зона (кухня, склад).
  • Рациональное использование площади: компактная планировка обеспечивает удобство передвижения, визуальную открытость и легкость восприятия.

Материалы и отделка

  • Стены: керамическая плитка в елочку с теплой подсветкой — акцент на чистоту и стиль.
  • Пол: каменная крошка (терраццо) — износостойкое покрытие с декоративным эффектом.
  • Мебель: барные стулья с мягкой обивкой, деревянные панели с вертикальными ламелями, встроенные ниши и полки.
  • Освещение: комбинированное — теплый свет в зоне обслуживания, акцентная подсветка декоративных элементов.
Dizajn Proekt Kafe 03
Dizajn Proekt Kafe 04
Dizajn Proekt Kafe 05

Декор и фирменный стиль

  • Неоновая вывеска «РАНIЦА» с графическим элементом (листок) — визуальный якорь бренда.
  • Полки с книгами, посудой и арт-объектами — создают атмосферу уюта и интеллектуального пространства.
  • Меню на грифельной доске — легко обновляемый элемент, подчеркивающий демократичность и открытость заведения.

Экологичность и устойчивость

  • Использованы натуральные материалы (дерево, камень).
  • Энергоэффективное освещение.
  • Возможность сортировки отходов (встроенные урны).

Технические решения

Dizajn Proekt Kafe D01
Dizajn Proekt Kafe D02
Dizajn Proekt Kafe D03
Dizajn Proekt Kafe D04
Dizajn Proekt Kafe D05
Dizajn Proekt Kafe D06
  • POS-терминал интегрирован в стойку — оптимизация процесса обслуживания.
  • Холодильное оборудование встроено в интерьер — сохранение эстетики без потери функциональности.
  • Эргономика рабочих мест — соблюдены нормативы по высоте, доступности и безопасности.

Соответствие нормам

Проект соответствует требованиям СНиП, СанПиН и пожарной безопасности. Все решения согласованы с техническими условиями эксплуатации объекта общественного питания.

Планируете ремонт? Начните с дизайн-проекта, который реально воплотить в жизнь.
Разработаем планировку, электрику и 3D-визуализацию с учетом вашего бюджета.

Поделитесь с друзьями!

Вверх

Закрыть

Остались вопросы?

Или свяжитесь с нами